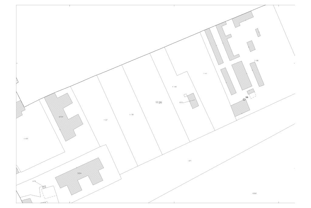
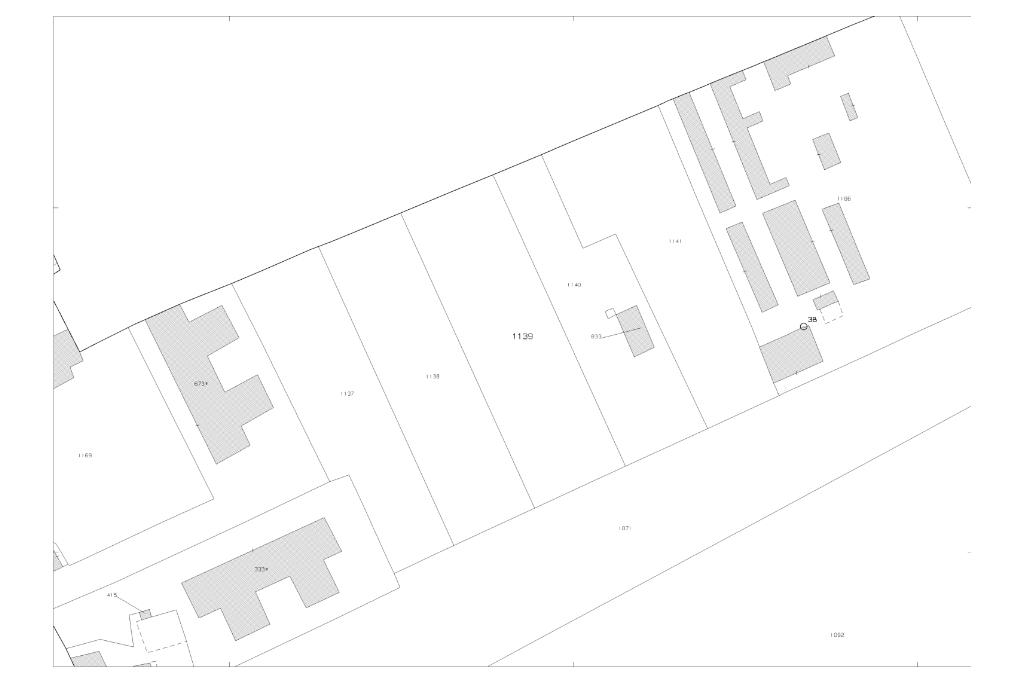
Terreno in vendita

San Giorgio A Cremano, Via Botteghelle - San Giorgio Botteghelle
€ 60.000
Prezzo aggiornato
2698 Mq 2698 Mq

Terreno in vendita

San Giorgio A Cremano, Via Botteghelle - San Giorgio Botteghelle

Descrizione annuncio

Terreno Orto-Frutteto in Vendita – Zona Semicentrale – € 60.000,00

TECNOCASA per le IMPRESE ne propone la vendita.

Posizione: Zona semicentrale, comoda e facilmente accessibile

Superficie: 2.698 mq

Caratteristiche del terreno:

- Terreno pianeggiante e ben curato

- Attualmente adibito a orto e frutteto

- Presenza di alberi da frutto produttivi

- Facilmente accessibile con auto o piccoli mezzi agricoli

Servizi:

- Acqua presente allaccio rete idrica e corrente elettrica

Ideale per:

- Chi cerca un angolo verde per coltivare

- Piccoli imprenditori agricoli o amanti della natura

- Investimento in una zona tranquilla ma vicina al centro

Per appuntamenti, contattare AGENZIA TECNOCASA IMPRESA San Giorgio a Cremano Via Manzoni 178 - Telefono cellulare e WhatsApp 081 399 60 19.
Offriamo valutazioni gratuite e consulenza mutuo per rendere sempre più sereno e tranquillo l'acquisto del vostro locale commerciale.
Seguici sulle nostre pagine Facebook e Instagram per essere sempre aggiornato.
Facebook: Gruppo Tecnocasa Impresa San Giorgio.
Instagram: tecnoimpresasangiorgio.

Mostra tutto

Nelle vicinanze

Trasporto pubblico Trasporto pubblico
San Giorgio a Cremano
San Giorgio a Cremano
1,1 Km
San Giorgio Cavalli di Bronzo
San Giorgio Cavalli di Bronzo
1,2 Km
Trasporto pubblico
490 m
Diaz - Via Roma
Diaz - Via Roma
1,2 Km
stazione di Pietrarsa-San Giorgio a Cremano
stazione di Pietrarsa-San Giorgio a Cremano
790 m
Ricariche auto elettriche Ricariche auto elettriche
Portici Parcheggio Comunale Multipiano | EnelX
1,6 Km
Stazione Portici Bellavista | EnelX
1,6 Km
Portici Siani | EnelX
2,4 Km
Portici De Lauzieres | EnelX
2,4 Km
EnelX Fast Bourelly Car Service
2,6 Km
Scuole Scuole
3° Istituto comprensivo
590 m
Liceo Statale "Quinto Orazio Flacco"
700 m
"Francesco Saverio Nitti" Portici
780 m
Liceo Scientifico "Silvestri" - succursale
1,0 Km
4° Istituto comprensivo
1,3 Km
Farmacia Farmacia
Farmacia Tufarelli
2,3 Km
Dott. Giliberti
2,4 Km
Ospedali Ospedali
AZIENDA SANITARIA LOCALE NA1 - DISTR. 52
1,2 Km
Guardia medica
2,1 Km
Supermercati Supermercati
Euroesse
1,7 Km
Euroesse Supermercati
1,9 Km
Supermercato SISA - Gruppo di Polo
2,6 Km
Maxistore Decò
2,7 Km
Negozi Negozi
Caseificio Ambrosio
2,4 Km
OVS
2,6 Km
Ristoranti Ristoranti
Casa Marigliano
300 m
Mangiamoci Su
310 m
Pizzeria Salvo
490 m
Pizzeria da Michele
970 m
La Vineria senza Cucina
1,2 Km
Mostra tutto

Caratteristiche

Rif.:
61118957
Piano:
Terra
Condizionamento:
Assente
Ascensore:
No
Riscaldamento:
Assente
Libero:
Mostra tutto
Prezzo Prezzo
€ 60.000
Rata mutuo Rata mutuo
€ 285 / mese
Spese annue Spese annue
€ 120
Proponi il tuo prezzoProponi il tuo prezzo

Classe Energetica

G
G
G
G
G
G
G
G
G
EP globale non rinnovabile:
81.90 kW h/m² anno
EP globale rinnovabile:
81.90 kW h/m² anno
EP invernale del fabbricato:
EP estiva del fabbricato:
Riscaldamento:
Assente

Prezzo ridotto di €1 (8%%)

Ti interessa visionare l'immobile?

Fissa un appuntamento  Fissa un appuntamento

Richiedi informazioni

Clicca su Leggi per aprire l'informativa
* Questi campi sono obbligatori

Calcola il tuo mutuo

Semplice e senza impegno
Anticipo

( % )
Mutuo

( % )

pochi semplici passi

inserisci i tuoi dati
Questionario completato
Grazie per aver richiesto un appuntamento senza impegno con un nostro Consulente del Credito e Assicurativo.

Hai inserito correttamente tutti i dati necessari e a breve riceverai una e-mail con un link da convalidare per inviare i tuoi dati.
Affiliato
Tecnoimpresasangiorgio Srl
Via Alessandro Manzoni, 178 80046 San Giorgio A Cremano (NA)

Il nostro staff


  • Angela Pennino
    Collaboratrice

  • Pasquale Ruggiero
    Collaboratore

  • Rosa Vitale
    Coordinatrice

  • Raffaele Di Gennaro
    Affiliato
Via Alessandro Manzoni, 178 80046 San Giorgio A Cremano (NA)
Zona: San Giorgio - San Giovanni - Barra - Cercola - Casalnuovo - Volla
Mostra su mappa
Orari: Lunedì Martedì Mercoledì Giovedì Venerdì 09:00 -13:00 15:00 - 19:00 Sabato chiuso Domenica Chiuso
Affiliato
Tecnoimpresasangiorgio Srl
Via Alessandro Manzoni, 178 80046 San Giorgio A Cremano (NA)

2026 Tecnocasa Franchising S.p.A. - P. IVA 08365160152 - Via Monte Bianco 60/A 20089 Rozzano (MI). Ogni agenzia ha un proprio titolare ed è autonoma. Privacy policy | Policy utilizzo | Cookie policy